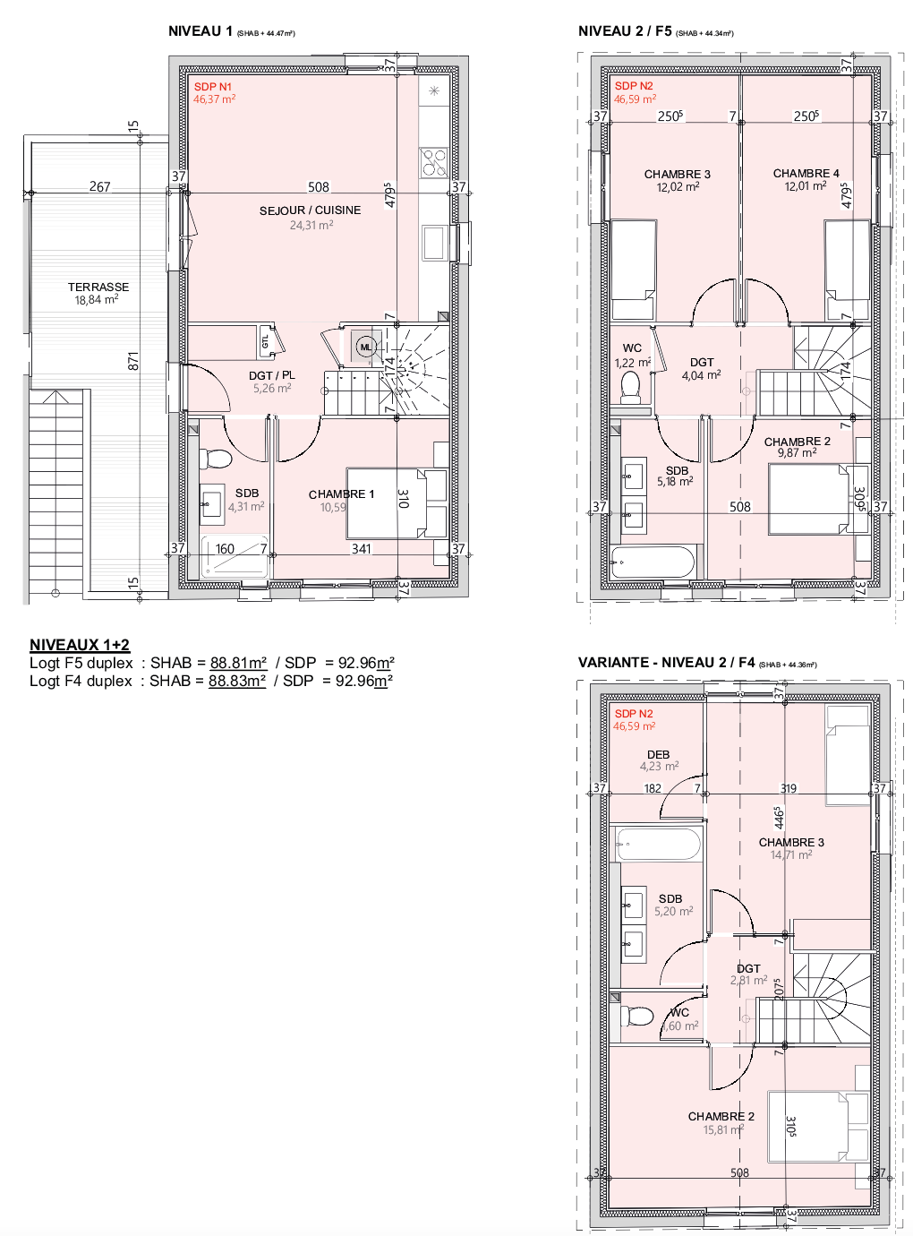
Lot 1D, 9D, 10D, 11D
Appartement Duplex T4
3 Chambres - 2 Salles de Bains
Surface Habitable : 88M2
Surface Terrasse 1D : 12M2
Surface Terrasse 9D,10D,11D : 18,75M2
PRIX 1D = 528 000€
PRIX 9D,10D,11D = 554 000€
Appartement Duplex
- PRIX M2 = 6300€






